
Voorlopig ontwerp woongebouw - Het Hoefijzer
In dit project moest ik in een team een gebouwconcept uitwerken in drie stappen van schetsontwerp naar VO-niveau. De drie stappen worden steeds afgerond met een presentatie: presentatie prijsvraag, presentatie welstand en omwonenden en presentatie VO. Het was de bedoeling dat er een bestaand ontwerp werd aangepast en verbeterd.
In de huidige situatie is de hoofddraagconstructie een schijvenconstructie die gemaakt is van prefab beton. Om het gebouw duurzamer te maken hebben wij besloten om de prefab beton wanden te vervangen door CLT wanden. Deze wanden zijn erg sterk en een stuk duurzamer. Ook zijn deze wanden iets dunner waardoor onze gevels weer dunner worden en dus meer woonruimte beschikbaar is. De betonnen kanaalplaten vervangen we voor houten kanaalplaten. Dit is duurzamer, maar ook omdat een CLT wand geen beton kan dragen zonder liggers. Doordat we op de begane grond veel vliesgevel hebben geplaatst is er daar meer versteviging nodig. Daarom hebben wij besloten om op de begane grond met stalen kolommen en balken te werken die voor meer stevigheid zorgen. Deze zitten in de wandopbouw maar steken ook deels uit. Dit hebben wij gedaan omdat het sfeer geeft aan het gebouw. Net zoals de leidingen die in het zicht zitten
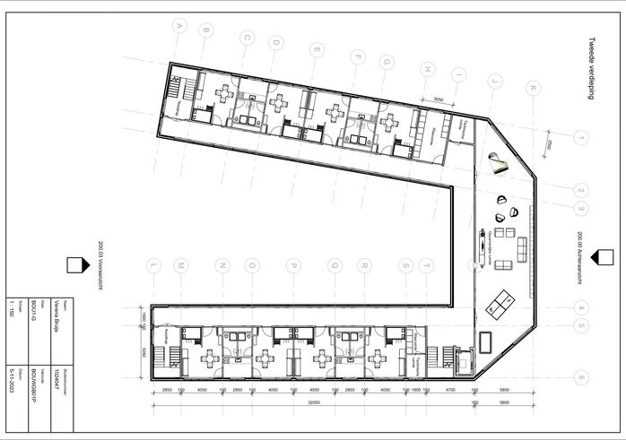
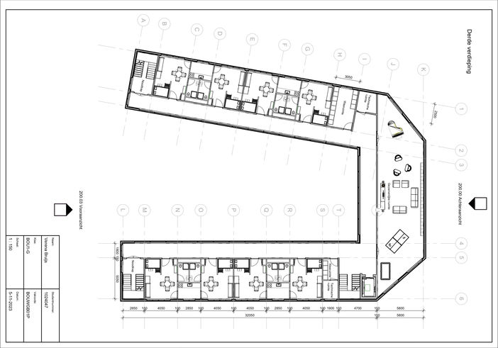
We hebben ervoor gekozen om de linkerzijde van het gebouw wat meer open te zetten. Dit heeft als voordeel dat er meer zonlicht tussen het gebouw komt, ook komt hierdoor nu eerder zonlicht op het terras. Verder door het gebouw open te trekken versterkt het de kwaliteit van de openbare ruimtes en zorgt het ervoor dat het gebouw zich meer betrekt in de omgeving. Het rechter gedeelte van het gebouw blijft dus recht. Als we het rechter gedeelte ook open zouden zetten winnen we niet veel zonlicht, dit komt omdat aan die zijde de zon op komt. Verder heeft het ook te maken dat het gebouw dan meer m² oppervlakte van de locatie in bezit zal nemen. Wat wellicht problemen kan veroorzaken voor gebouwen die daar in de toekomst gebouwd zullen worden.
In het huidige ontwerp zit een slijterij en een noten en kaas winkel. Wij vinden dit niet heel erg bij de doelgroep passen. Wij hebben daarom besloten om de slijterij een andere functie te geven. Veel studenten maken gebruik van een fiets/scooter. Wij vinden het belangrijk dat je fiets/scooter veilig staat. Aangezien in de stad het nog wel kan voorkomen dat je fiets/scooter gestolen wordt als je deze buiten laat staan. Dus op de plek van de slijterij komt een fietsen- en scooterstalling. We gaan op de plek van de noten en kaas winkel een sportschool maken. Dit past beter bij de doelgroep dan een noten en kaas winkel. De sportschool is alleen voor de bewoners zelf en je hebt gratis toegang tot de sportschool als bewoner, aangezien de kosten in de huur zitten verwerkt.
Project Gallery

















